Proyectos y Desarrollos Integrales en Morelos s.a de c.v

Inicio Servicios y Trámites Nuestro Trabajo Nosotros Contacto
Imagen 1 Imagen 2 Imagen 3

Proyecto casa habitación TQS-03

Proyecto de casa habitación que cuenta con un predio de 200 m2, ideal para familias, parejas o cualquier persona que busca un espacio funcional, con diseño y construcción de alta calidad, ubicada en Tequesquitengo lugar turístico y tranquilo lo que la hace una opción para aquellos que buscan una vida con comodidad y accesibilidad, con una oportunidad única de adquirir esta propiedad.

Terminado

Imagen 1 Imagen 2 Imagen 3

Proyecto de rotonda

Proyecto dentro de un fraccionamiento, se desarrolló una rotonda para dar vialidad y un espacio agradable a la vista, así como funcional de acuerdo a las necesidades del lugar, haciéndolo más atractivo.

Terminado

Imagen 1 Imagen 2 Imagen 3

Proyecto casa habitación TQS-04

Proyecto de casa habitación que cuenta con un predio de 200 m2 con diseño y construcción de alta calidad, ubicada en Tequesquitengo lugar turístico y tranquilo con una oportunidad única de adquirir esta propiedad, con un diseño único y apegado a lo minimalista, perfecta para disfrutar momentos con la familia y amigos

En construcción

Imagen 1 Imagen 2 Imagen 3

Proyecto SYL-18

Proyecto de casa habitación que cuenta con un predio de 300 m2 con un diseño y construcción de calidad dirigido a para familias que buscan un lugar tranquilo, siendo una opción de comodidad, accesibilidad, funcionalidad y sobre todo acogedor.

En construcción

Imagen 1 Imagen 2 Imagen 3

Proyecto FAL-01

Proyecto de casa habitación cuenta con un predio de 200 m2, inspirado para familias, parejas u cualquier persona para descanso con espacios ideales para relajación y diversión, además de tener lo necesario para una vida cómoda ya que cuenta con bastante accesibilidad con espacios acogedores y funcionales.

En construción

Imagen 1 Imagen 2 Imagen 3

Proyecto de terraza

Proyecto de Terraza, Se realizó una remodelación para convertirlo en terraza, logrando así este proyecto luminoso, con espacios necesarios para crear convivencia, comodidad y funcionalidad, con un diseño apegado totalmente al cliente.

En proceso

Imagen 1 Imagen 2

Proyecto de entrada de Fraccionamiento Sol y Lago

Proyecto de entrada de Fraccionamiento Sol y Lago, diseño creado para la fachada de un fraccionamiento, funcional, estético y de seguridad para las personas, sin perder el estilo arquitectónico que se quiere expresar para el resto de los proyectos.

En proceso

Imagen 1 Imagen 2

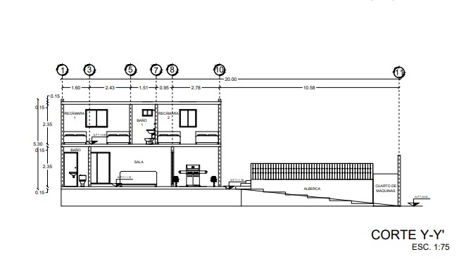
Proyecto FAL-M08L09

Proyecto de casa habitación con enfoque familiar para vacaciones cerca del lago, con habitaciones amplias, espacios de recreación para diversión dentro y fuera de la casa, gran patio exterior con una alberca muy grande para disfrutar del aire fresco.

En proceso

Imagen 1 Imagen 2

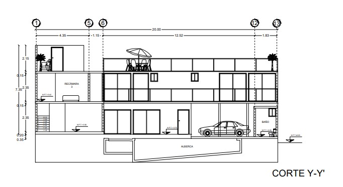
Proyecto FAL-M17L11

Proyecto de casa habitación con un predio de 200 m2, es perfecta para familia, parejas o cualquier persona que busca un espacio funcional con un diseño y construcción de alta calidad con propuesta de habitaciones amplias y luminosas.

En proceso